04:38
USD 87.45
EUR 102.67
RUB 1.15

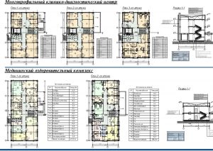
Оздоровительный комплекс и диагностический центр построят в Балыкчи

В Балыкчи Иссык-Кульской области начали строительство двух объектов здравоохранения. Об этом сообщили в Госстрое.

По его информации, строительство ведется на территории городской больницы за счет Катарского благотворительного фонда.

«На территории городской больницы построят трехэтажный медицинский оздоровительный комплекс на 21 койко-место и двухэтажный клинико-диагностический центр на 16 койко-мест. По проекту сметная стоимость медицинского оздоровительного комплекса общей площадью 614,3 квадратных метра составила 22 миллиона 390 тысяч сомов, а смета многопрофильного клинико-диагностического центра общей площадью 768 квадратных метров составляет 27 миллионов 993 тысячи 600 сомов», — сказали в ведомстве.

Популярные новости
Бизнес